



Framing & Foundation Details
CMS Design, Elskop • Scholz
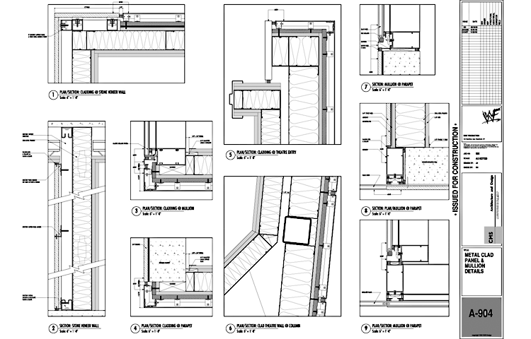
• Exterior Lighting Details: Recessed Ramp Lights • Poured Concrete Staircase w/recessed Lighting • Metal Wall Panel Cladding Details • Wood Wall Panel Details • Framing & Foundation Section Details • Exterior Fireplace Sections & Details • Complex Metal Storefront Section Details